AŞKINER EVİ

Proje Yılı:

2021

Proje Tipi:

Konut

Lokasyon:

Ankara

Proje Alanı:

330 m2

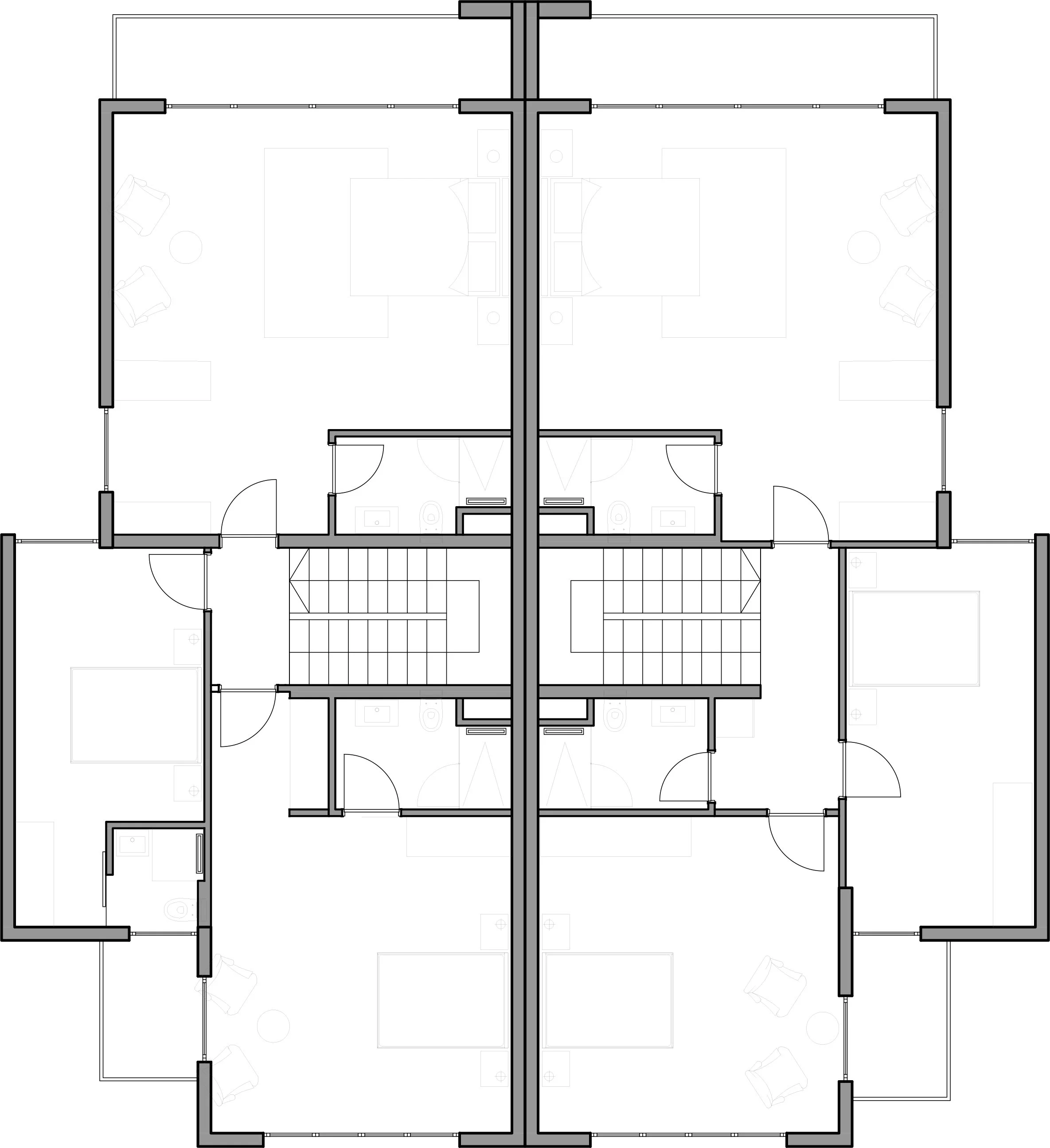
Ankara Yaşamkent'te bitişik iki parselde konumlanan bu proje, müstakil konut ve apart dairelerden oluşan bir yapıyı barındırmaktadır. Yapı, dışarıdan bakıldığında bütüncül bir tasarım anlayışı sergilerken, esnek plan düzeni sayesinde farklı kullanım ihtiyaçlarına göre dönüştürülebilir bir yapıya sahiptir. Modern çizgilerin ön planda olduğu tasarım, brüt beton ve tuğlanın doğal uyumu ile tamamlanmış; böylece sade ve minimal bir estetik yakalanmıştır.

Previous
Previous

DOCs KIRIKKALE

Next
Next

AVŞAR EVİ